Nos logements
Appartements modernes et bien conçus
3 ½ – 4 ½ – 5 ½
Découvrez l’un des projets résidentiels d’Immo Fortis : le développement de la rue Gauley à East Angus, où près de
65 unités seront offertes. Pensées pour allier
confort, tranquillité et qualité, nos unités
3 ½, 4 ½ et 5 ½ — offertes à partir de
900 $ — présentent un style contemporain ainsi que des aménagements conçus pour rehausser véritablement votre quotidien.
Chaque appartement bénéficie d’une isolation supérieure et de
planchers de béton, assurant une insonorisation remarquable et un environnement paisible.
Cette construction solide contribue également à un confort thermique optimal, été comme hiver.
Cette page présente spécifiquement les appartements du projet situé
sur la rue Gauley. Immo Fortis développera bientôt d’autres projets résidentiels dans différents quartiers.
Pour en apprendre davantage sur nos valeurs, notre mission et notre vision, nous vous invitons à visiter la page À propos.
Des espaces modernes et bien pensés
Les appartements Immo Fortis offrent des superficies généreuses et une conception efficace pour un confort quotidien optimal.
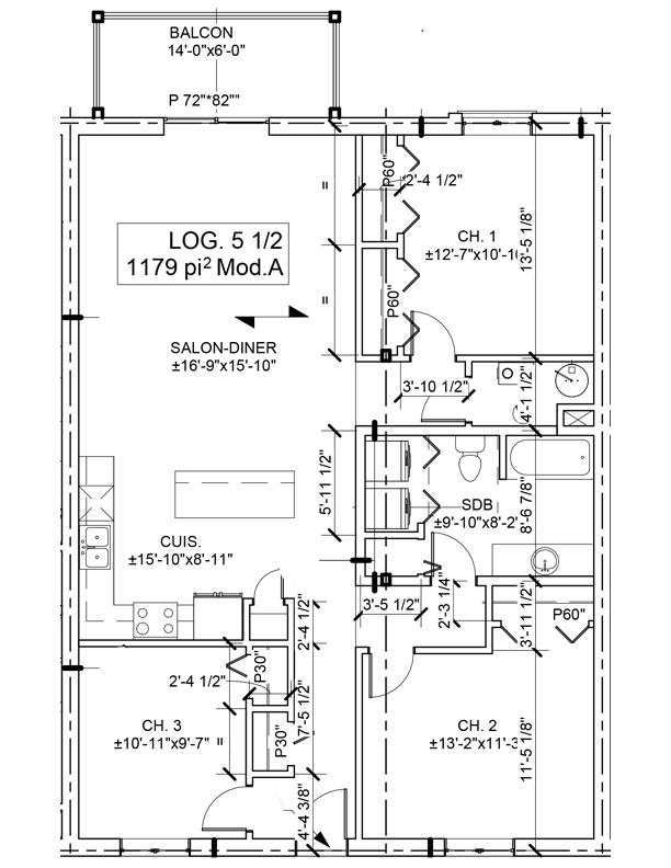
- 5 ½ – 1 179 pi² : un grand espace de vie lumineux, idéal pour les familles ou le télétravail.
4 ½ – 944 pi² : deux chambres fonctionnelles et une aire ouverte bien répartie.
3 ½ – 684 pi² : un espace moderne et parfaitement optimisé pour une personne seule ou un couple.
Tous nos logements incluent :
Comptoirs en quartz
Garde-robe double
Matériaux de qualité
Une finition soignée et impeccable






Un quartier boisé, paisible et tout près des services
Situé dans un environnement calme et entouré d’arbres, le projet se trouve directement à proximité de :
Épiceries (IGA, et bientôt Super C)
Pharmacies (Proxim, et bientôt Jean Coutu)
Dollarama, parcs, garderies, école primaire
Espaces verts, sentiers et commerces locaux
Un emplacement idéal pour profiter d’un quartier tranquille, tout en restant à deux minutes de tout ce dont vous avez besoin.

Internet haute vitesse illimité (gratuit)
Profitez d’une connexion rapide et stable, parfaite pour le télétravail, le streaming et les familles connectées.

Aspirateur central inclus
Pratique et performant, il facilite l’entretien et garde votre logement impeccable en tout temps.

Thermopompe (chauffage + climatisation)
Confort toute l’année avec une climatisation et un chauffage écoénergétique.

Stationnement + borne pour voiture électrique
Deux espaces de stationnement et une sortie électrique prête pour la recharge de votre véhicule.
À seulement 15 minutes de Sherbrooke
Une localisation stratégique qui permet d’accéder facilement :
À l’Université de Sherbrooke
Au CHUS et CHUS Fleurimont
Aux centres d’emploi et commerces de la région
Aux principaux axes routiers pour vos déplacements quotidiens
Parfait pour les professionnels, étudiants, jeunes familles ou retraités désirant un milieu de vie paisible sans s’éloigner des services urbains.
